Transaction Drawer
Large transaction drawer is ideal for drive-through services. Bullet resistant unit features doors that open once the sliding drawer is extended, a bill clip and coin pad and a clear Lexan lid for easy view of contents.
- Heavy-duty ball bearing slides
- Drawer locks automatically when closed
- Can be installed in walls from 1.065" thickness to 8.625"
- Drawer and housing are Level I bullet resistant plastic
- Stainless steel doors, hood and flange
To order please call 802-824-9808 or send an email to sales@gaffco.com.
Photos
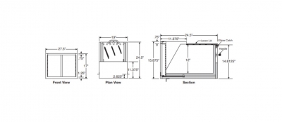
Diagrams
Specifications
- 27"w x 24.5"l x 15.875"h
Get a Quote
Give us some information about your project and we’ll get back to you within 24 hours with an estimate. View More ›