Walk Up Window
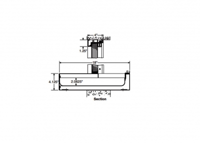
Bullet resistant walkup window features an aluminum frame, a stainless steel countertop with an incorporated drawer and a 5″ diameter talk thru. The countertop extends out below the window on the customer side to accomodate personal items and offer a smooth writing surface.
- Anodized aluminum frame (clear or bronze)
- Stainless steel counter top
- Weatherstripped drawer
- Natural voice transmission talk thru
- Available in three sizes
- Level I, II or III bullet resistant
To order please call 802-824-9808 or send an email to sales@gaffco.com.
Photos
Diagrams
Specifications
- Frame: Clear or bronze anodized finish
- Counter top: Stainless steel
- Talk thru: Cast stainless steel
GWW-2436: 24″w x 36″h (Wall opening 24.25″x36.25″)
GWW-3036: 30″w x 36″h (Wall opening 30.25″x36.25″)
GWW-3636: 36″w x 36″h (Wall opening 36.25″x36.25″)
GWW-3036: 30″w x 36″h (Wall opening 30.25″x36.25″)
GWW-3636: 36″w x 36″h (Wall opening 36.25″x36.25″)
Specify frame finish and bullet resistant level when ordering
Get a Quote
Give us some information about your project and we’ll get back to you within 24 hours with an estimate. View More ›